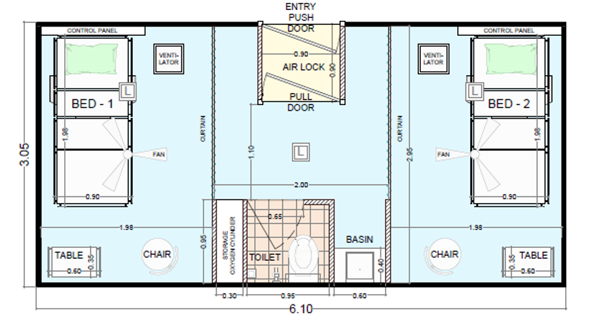
Specifications
- Steel Frame
- Wall And Ceiling- Sandwich Panels Of 50mm Thk
- Length 6.1 M
- Width 3.05 M
- Height 2.592 M
- Entry Push Door-1 Nos And Pull Door-1 Nos With Air Lock
- Negative Room Pressure
- Ceiling Fan-2 Nos
- Necessary Electrical And Plumbings
- Oxygen Cylinder Storage Provision
- Wash Basin And Toilet- 1 Nos
- Exclusion Or Optional (A/C, Exhaust Fan, Beds And Furnitures)
Applications
- Ideal for isolation, screening and treatment of potential COVID 19 patients.
- Space restrictions within the hospital, limited advanced notice of patient arrival, staff and patient safety, and patient privacy issues, these units are an effective solution.
- Possible alternative for hospitals to manage patients with highly communicable and potentially lethal diseases.





